Gallery
Features
About
Contact
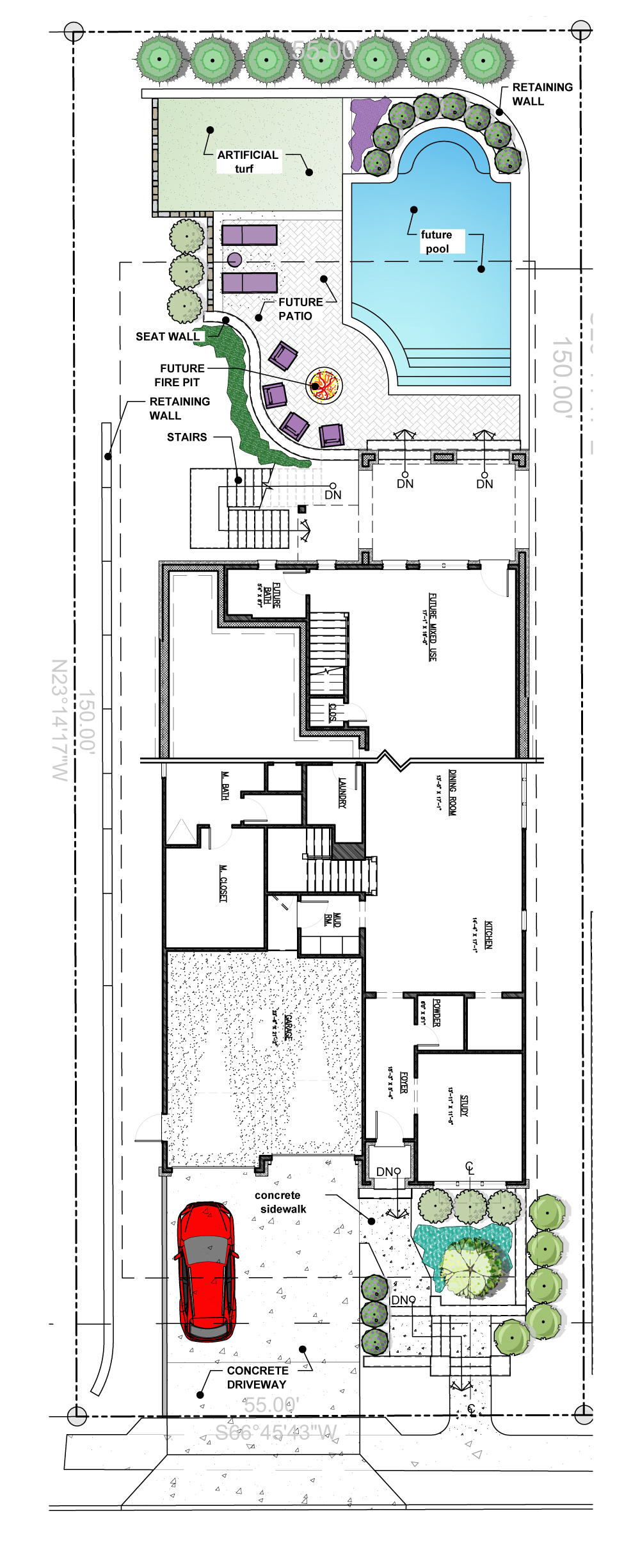
1031 Garnett Ave
Coming Soon
Under COnstruction
This property is currently under construction. For more information call or email:
Julian Bennett - 423-580-5798
Brian McKinney - 423-802-1213
Contact Us